今回はウォーターマンの工場の視察。文章を読むと渡部氏の精神が非常に高揚しているのがわかる。ずっと目標にしてきた会社の主要工場ということで、いよいよやって来たぞ!と意気込んでいたのであろう。甲子園に初出場した野球部の監督の心境かも知れない。
【車がウォーターマンの工場の前に止まった時には、さすがに胸のおどる思いがしました】・・・この一言が渡部氏の心境をうまく良い表している。
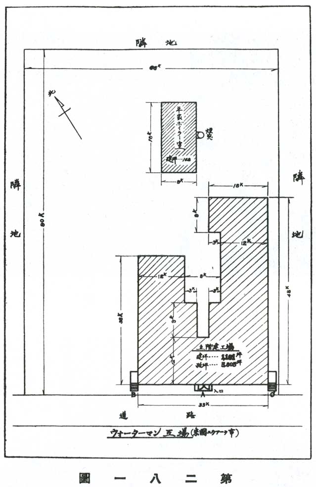
左上の写真は、工場を飛行機から見た姿、下は正面の道路を隔てて見た姿で、下の手書き図面は構内配置図じゃ。
それにしても驚くほど大きな工場じゃな。ここは工場だけで、本社機能はニューヨークにあったとか。ちなみに、この工場はニューヨークから30キロほど離れていた。所在地はニューアーク。
この見取り図によれば、敷地面積は5,940坪、工場建坪1,161坪、ボイラー室建坪162坪で、建坪合計1,322坪。そして延坪数では、工場(五階建て)5,805坪ある。パイロット工場の総延坪数の4倍!
渡部、和田の両氏は、工場の表玄関の受付にいって、工場見学したいと申し出たが、本社の許可が無ければ見せられないとキッパリと断られたらしい。何社も調査していたので、度胸がすわり、正面突破をこころみたらしいが、両氏の予想どおりの反応しか返ってこなかったようじゃ。
当時のウォーターマン社の子会社の一つに、Ailin-lambert Co., Inc. があったと書かれている。通称:エイキンランバートというのは、てっきり萬年筆製造会社だと思っていたが、1889年創立、1906年にウォーターマン社に合併された会社で、この時点では販売会社であり、製造には関係せず、商品はウォーターマン社から供給されていたらしい。ブランドとして残っていたかどうかは不明だが、Ailin-lambertの萬年筆は使ったことがないこともあり、急に興味が湧いてきた。
左はこの当時の米国における各社の状況をまとめたものである。非常に貴重な資料!
現在では、項目名は左側と上側に記述するが、この表では右側と上側に項目名があるので、非常に見にくい。
当時の米国での総生産本数は1,600万本程度で、日本の約4倍。
考えていたよりも日本の生産本数が多いような気がする。あるいは、渡部氏が想定した、【無名萬年筆メーカーの製造本数が全体の40%】がもう少し多いのではないかな?
それにしてもこの時点で、パーカーがウォーターマンの製造本数を超えていたのは、渡部氏にとってもショックだったようだ。
それから70年経過して、この表ではParker、Waterman、Sheafferしか存続しておらず、さらにParkerとWatermanが同じ資本、SheafferはBic傘下。独自資本で経営されているのは、実はパイロットだったりする。そのパイロットも企業防衛策をとることがHPに掲載されている。社長メッセージとして。ガンバレ!パイロット!と応援したくなる。なんせこのところ業績はすごく良いからな・・・